Objekt 3 von 5
Nächstes Objekt
Vorheriges Objekt
Zurück zur Übersicht

Glashütte: Ihre neue Wohnung im Dachgeschoss!

Objekt-Nr.: 151-011
  • Hausansicht
  • Grundriss
Hausansicht
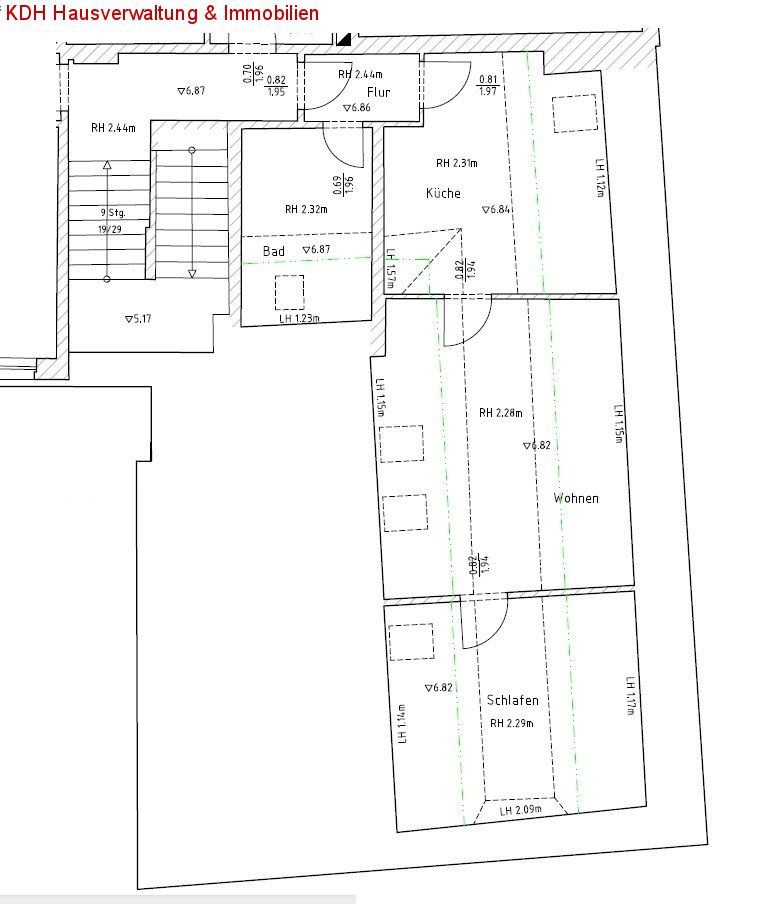
Grundriss
Schnellkontakt
QR-Code
Basisinformationen
Adresse:
Hauptstraße 18
01768 Glashütte
Sächsische Schweiz-Osterzgebirge
Sachsen
Gebiet:
Stadtzentrum
mtl. Kaltmiete:
349 €
Wohnfläche ca.:
49,09 m²
Zimmeranzahl:
2
Weitere Informationen
Weitere Informationen
Wohnungstyp:
Dachgeschoss
Etage:
3
Etagenanzahl:
3
Warmmiete inkl. NK:
474 €
Nebenkosten:
125 €
Kaution / Genossenschaftsanteile:
2 Kaltmieten
Heizkosten:
65 €, sind in den Nebenkosten enthalten
Provisionspflichtig:
nein
Bad:
Wanne, Fenster
Anzahl Schlafzimmer:
1
Anzahl Badezimmer:
1
Raucher:
nur an Nichtraucher
Keller:
nein
Umgebung:
Apotheke, Bahnhof, Bus, Post, Wohngegend
Möbliert:
nein
Haustiere:
nach Vereinbarung
Qualität der Ausstattung:
normal
Baujahr:
1900
Bezugsfrei ab:
01.08.2026
Bodenbelag:
Fliesen, Laminat
Zustand:
gepflegt
Heizung:
Zentralheizung
Befeuerungsart:
Gas
Energieausweistyp:
Verbrauchsausweis
Energieeffizienz-Klasse:
F
Energieverbrauchs-Kennwert:
170 kWh/(m²*a)
Energieverb. Warmwasser enthalten:
ja
Baujahr laut Energieausweis:
2001
Kaution / Genossenschaftsanteile:
2 Kaltmieten
Beschreibung
Beschreibung
Objektbeschreibung:
Das Mehrfamilienhaus befindet sich direkt gegenüber vom bekannten Uhrenmuseum von Glashütte. Ihre Wohnung ist dennoch ruhig gelegen.

Ein kleiner Innenhof sowie ein Fahrradraum steht Ihnen zur Nutzung frei.
Ausstattung:
- Schlafzimmer
- großes Wohnzimmer
- gemütliche Küche mit Fenster
- innenliegender Flur
- Bad mit Badewanne und einem Fenster
Lage:
Ihre künftige Wohnung liegt im Stadtkern von Glashütte. Die Uhrenstadt hat alle Geschäfte des alltäglichen Bedarfs. Banken, Schlüsseldienst sowie weitere Dienstleister sind in wenigen Minuten zu Fuß erreichbar.

Auch überzeugend sind die Verkehrsanbindungen nach Dresden und Heidenau durch gut ausgebaute Straßen, regelmäßig fahrende Linienbusse und die Müglitztalbahn.
Sonstiges:
Besuchen Sie doch auch unsere Internetseite und schauen Sie sich weitere attraktive Wohnungsangebote an. Gern besprechen wir Einzelheiten mit Ihnen bei einer Besichtigung.
Anmerkung:
Die von uns gemachten Informationen beruhen auf Angaben des Eigentümers. Für die Richtigkeit und Vollständigkeit der Angaben kann keine Gewähr bzw. Haftung übernommen werden. Irrtümer sind vorbehalten.
AGB:
Wir weisen auf unsere Allgemeinen Geschäftsbedingungen hin. Durch weitere Inanspruchnahme unserer Leistungen erklären Sie die Kenntnis und Ihr Einverständnis.
Ihr Ansprechpartner
 


K.D.H. Haus und Grundstücks GmbH
Telefon: 03 50 53 / 42 45 8
Fax: 03 50 53 / 42 45 5
Mobil: 0172 / 35 38 333

Zurück zur Übersicht